東京メトロ市ヶ谷駅から徒歩1分。4路線利用可の優れたアクセス性に加え、都心とは思えない穏やかな街並みが広がる市谷本村町。
その地に誕生した「ザ・パークハビオ市ヶ谷イースト棟」は、都心生活をアクティブに楽しみたい方にふさわしい賃貸レジデンスです。
ジムやゴルフレンジといった共用施設を備え、日常に軽やかなメリハリを。
住戸は1DK〜2LDKまで多彩なプランをご用意し、単身者からディンクスまで幅広いニーズに対応します。
機能性と感性が心地よく響き合う、都市型レジデンスの新たな選択肢です。

ゴルフレンジ
共用部には、気軽にスイングを楽しめるゴルフレンジを完備。都心にいながら、ご自身のペースでリフレッシュやフォームの確認が可能です。
ちょっとした息抜きや日課としても取り入れやすく、オンとオフの切り替えに最適な空間です。米・LPGA公認の超高性能カメラセンサーを搭載。
イースト棟の居住者専用でご利用いただけます。

ジム
入居者専用のフィットネスジムは、気軽に通える“自宅の延長”として好評。天候や移動時間を気にせず、日々の体調管理や運動習慣を無理なく継続できます。
忙しい日常の中で、健康と向き合う時間をスマートに叶える設備です。
ランニングマシン、バイクマシン、マルチトレーニングマシン各1台。
イースト棟の居住者専用でご利用いただけます。

明るい木目のフローリングとシンプルで洗練された内装が印象的な1LDKタイプ。居室とリビングは引き戸で仕切れる設計となっており、開け放てばワンルームのような広がりを、閉じれば独立性のある空間として活用できます。キッチンはスタイリッシュな木目調仕上げで、生活感を抑えた上品な印象に。約2.4帖のウォークインクローゼットを備えており、収納面も充実。玄関から水まわりへの動線もスマートで、コンパクトながら機能的な住まいを実現しています。

ウォークスルークローゼットで洋室とリビングがつながる、回遊性に優れた1LDK。動線がスムーズなだけでなく、空間をすっきりと保てる豊富な収納も魅力です。リビングはワイドな窓から自然光がたっぷり入り、明るく開放的な印象。ナチュラルな木目と白を基調とした内装は、どんな家具とも相性がよく、自分らしい暮らしを演出できます。コンパクトながらも、空間効率と快適性を両立した住まいです。

約9.7帖の広々としたリビングに、洋室とウォークインクローゼットを備えた1LDKタイプ。リビングと寝室を分けながらも、スライドドアで空間の一体感も演出でき、ライフスタイルに応じた柔軟な使い方が可能です。玄関にはシューズインクロークを備え、収納力も充実。キッチン横にはカップボードとパントリーがあり、料理好きの方にも嬉しい設備が整っています。ホテルライクなバスルームやゆとりある洗面空間も、快適な都心暮らしを支えます。

約9.7帖の広々としたリビングに、洋室とウォークインクローゼットを備えた1LDKタイプ。リビングと寝室を分けながらも、スライドドアで空間の一体感も演出でき、ライフスタイルに応じた柔軟な使い方が可能です。玄関にはシューズインクロークを備え、収納力も充実。キッチン横にはカップボードとパントリーがあり、料理好きの方にも嬉しい設備が整っています。ホテルライクなバスルームやゆとりある洗面空間も、快適な都心暮らしを支えます。

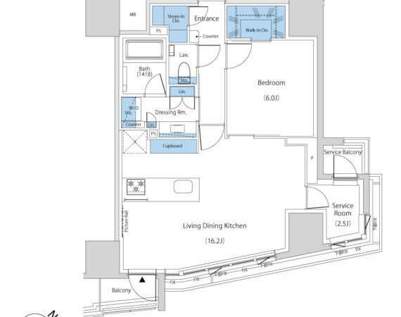
約16帖のゆとりあるリビングダイニングに、2つの独立した洋室を備えた2LDKプラン。主寝室には大容量のウォークインクローゼットと専用ストレージを設置し、日常使いの荷物から季節物までしっかり収納できます。キッチンにはカップボードとパントリーもあり、調理スペースの使いやすさも◎。玄関のシューズインクローゼットなど、生活動線上に配された収納が暮らしを快適に整えます。単身者のゆとりある住まいやDINKs・ファミリーにも最適な一室です。
複数路線が利用できる市ヶ谷駅まで徒歩1〜3分という抜群の立地。
東京メトロ有楽町線・南北線、都営新宿線、JR中央・総武線が使えるため、新宿・東京・渋谷など主要都市へダイレクトにアクセス可能です。通勤や通学はもちろん、出張やプライベートでもフットワークの軽さを実感できます。都心でありながら、穏やかな時間が流れるこの立地は、利便性と落ち着きを両立させたい方に最適です。
周囲にはスーパー、コンビニ、ドラッグストア、カフェ、医療機関など生活利便施設が徒歩圏内に揃っており、日常の買い物や急な用事にも困りません。また、靖国神社や外堀公園といった緑豊かなスポットも身近にあり、都心でありながら季節の移ろいを感じられる環境が魅力。治安の良さや街の静けさも、市ヶ谷エリアが長く選ばれ続ける理由のひとつです。